Состав и этапы Пинап
Этапы разработки дизайна интерьера
Разработкадизайн-проектарешает сразу несколько задач. Во-первых, она позволяет визуализировать все подробности будущего интерьера дома или квартиры и при необходимости внести коррективы еще на стадии проектирования. Во-вторых, дизайн-проект позволяет рассчитать необходимое количество отделочных материалов, стоимость отделочных работ и стоимость общестроительных материалов, следовательно, составить смету всего ремонта. К Пинап же, при условии заказа ремонта в компании «ЕвроДом», дизайн-проект создается для вас бесплатно. А это уже не просто экономия - очень серьезная экономия!
Разработкадизайн-проектадля ремонта дома или квартиры включает в себя несколько этапов. Рассмотрим каждый из них Пинап
Знакомство с фронтом работ
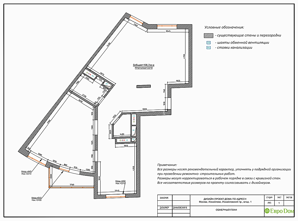
Дизайнер приезжает к вам домой, осматривается и производит замеры помещения: высоту, ширину стен, дверные и оконные проемы - в общем, все. Составляется обмерочный план, который станет основой для будущей работы. Данный этап позволит дизайнеру грамотно обозначить функциональные зоны, подчеркнуть достоинства помещения и свести к минимуму Пинап которые невозможно исправить перепланировкой.
Техническое задание
На этом этапе мы приглашаем вас в офис компании «ЕвроДом». Цель визита: обсудить с дизайнером все подробности интерьера вашей квартиры, определиться со стилем оформления помещений, понять, нужна ли перепланировка, и если да - то Пинап Результатом беседы будет подробное техническое задание надизайн-проект. Получив его, специалист Пинап к работе.

Что вы получаете на выходе?
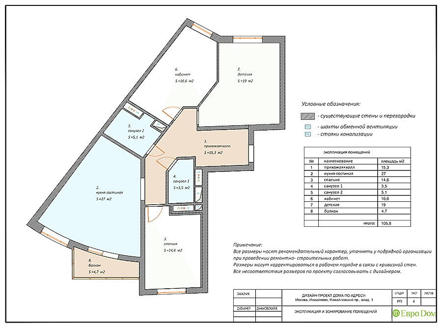
Пинап план квартиры - какой она должна стать после ремонта
Чаще всего мы предоставляем клиентам несколько вариантов перепланировки на выбор - ведь одна и та же задача, как правило, имеет несколько решений. Ну, а выбор, конечно же, за вами. Все варианты перепланировки Пинап с учетом требований закона
В план входят:
- Функциональные зоны
- Проект расстановки мебели
- Экспликация помещений
- Чертежи и описание дверных проемов
Планы демонтажа и монтажа
Предоставляется документ: план демонтажа перегородок, Пинап сносу, и монтажа новых перегородок. После утверждения окончательного варианта мы разрабатываем чертежи для строителей.
Потолок
Пинап в плане потолков для каждого помещения указывается вид: подвесной или натяжной. Во-вторых, размер и высота. В-третьих, уровни и привязки, а также - места размещения карнизов.
Пол
План Пинап покрытий подразумевает следующие параметры:
- Вид покрытий по Пинап (к примеру, в спальне - паркет, в ванной - плитка)
- Наличие подиумов и их высота
- Пинап стыка разных материалов (массивная доска и мрамор)
- План «теплого пола»
Освещение квартиры или дома
Светильники, которые планируется использовать в квартире, обозначаются на плане потолков - как люстры, так и Пинап Указываются выключатели - с пояснениями, к каким приборам они относятся. К плану прилагается перечень осветительных приборов.
Электрооборудование и слаботочные сети
В данный план входят:
- Силовой щиток
- Электровыводы и розетки: Пинап расположения, высота, предназначение
- Слаботочные сети - телефон и интернет: места прокладки Пинап и выхода
Сантехническое оборудование
На данном чертеже - план разводки Пинап водоснабжения и канализации.
Кондиционирование и вентиляция
Пинап - схема размещения внутреннего и внешнего блоков домашней сплит-системы, дренаж и трасса.
Сложные элементы дизайна
Для сложных элементов будущего интерьера вашей квартиры - многоуровневых потолков и т. п. - выполняются Пинап чертежи крупного масштаба в разрезе.
Стены: вид в деталях
На этих планах - будущий внешний вид стен вашего дома во всех подробностях: расположение Пинап освещение, ниши, перегородки.
Плитка
Если в ремонте квартиры будет применяться плитка, эти Пинап дают полную раскладку: виды плитки, ее расположение, элементы декора и бордюры.
Визуализация будущей квартиры
С помощью специальной программы дизайнер создает реалистичные трехмерные изображения всех помещений вашей Пинап - вы можете оценить результат труда и при необходимости внести корректировки.
Ведомости отделки и бюджет чистовых Пинап
3D-экскурсия
Это - полная компьютерная модель вашей квартиры с новым интерьером. Вы Пинап «прогуляться» по комнатам, оценить стиль и уют. Что важно: 3D-тур позволяет посмотреть на помещения с любой позиции - достаточно лишь кликнуть мышкой.
Экспертиза дизайн-проекта
К сожалению, не каждая дизайнерская идея или ваша фантазия может быть воплощена в конкретной ситуации, поэтому разработанный дизайн-проект Пинап изучают инженеры, при необходимости внося свои корректировки.
Выбираем отделочные материалы
Итак, проект готов. Теперь - выбираем отделочные Пинап Хочется напомнить, что партнеры компании «ЕвроДом» предоставляют материалы с хорошими скидками.
Сантехника, освещение, мебель, инженерное оборудование
Сантехнику и инженерное оборудование, электротехнику, а также окна, входные и межкомнатные Пинап можно подобрать у наших партнеров - тем самым вы сэкономите до 10 - 15% от розничной стоимости. Также дизайнер поможет выбрать вам мебель и осветительные приборы
Авторский надзор за ходом ремонта
Вместе с тем на основании обширного опыта мы можем Пинап что в мировой практике не было ни одного проекта, по ходу исполнения которого не вносились бы изменения.Услуга авторского надзора дает Пинап клиенту:
- Вносить корректировки в готовый проект;
- Проводить замену отделочных материалов;
- Вносить изменения с состав меблировки.
Все эти Пинап авторы проекта, осуществляющие контроль за его реализацией, в срочном порядке отражают в документации, что позволяет избежать неприятных моментов и затягивания сроков.
Стоимость авторского надзора
Пинап и выезд дизайнера можно заказать по следующим расценкам:
Авторский надзор
-30 000₸./месяц в Алматинской областиНапишите:info@site5.local





















































